QUY PHẠM THI CÔNG NGHIỆM THU CÔNG TÁC BÊ TÔNG
Các vật liệu để sản xuất bê tông phải đảm bảo yêu cầu kỹ thuật theo các tiêu chuẩn hiện ...
Các vật liệu để sản xuất bê tông phải đảm bảo yêu cầu kỹ thuật theo các tiêu chuẩn hiện ...
Khi cần thay đổi chiều rộng của nét vẽ trong một số lĩnh vực công nghiệp đặc biệt nào đó ...
Khung gồm có các cột, các dầm liên kết với nhau và liên kết với móng. Trong sơ đồ các ...
Lớp trát để che bọc các mặt kết cấu gạch đá, kết cấu bê tông và bê tông cốt thép, ...
Dù là gỗ tự nhiên hay gỗ công nghiệp gỗ cao cấp hay gỗ phổ thông đều khó tránh khỏi ...
Mặc dù Etabs không cung cấp lựa chọn tiêu chuẩn TCVN 356 trong tính toán cốt thép, nhưng từ những ...
Dung sai là phạm vi cho phép của sai số. Trị số dung sai bằng hiệu số giữa kích thước ...
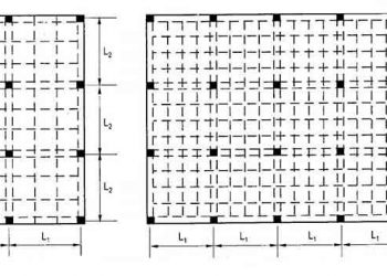
Sàn ô cờ là loại sàn sườn toàn khối có dầm sàn được đặt theo 2 phương, chia bản ra ...
Cho lệnh lệnh Dimcenter trong autocad này sẽ giúp ta giải quyết điều đó một các gọn nhất, một cách ...
Phương pháp điều chỉnh nội lực. Khi các nhịp cạnh nhau chênh lệch lờn hơn 10% có thể dùng các ...