XEM TUỔI XÂY NHÀ NĂM 2025
Quan niệm dân gian cho rằng xây nhà vào những năm đẹp hợp tuổi, hợp mệnh gia chủ sẽ giúp mọi việc hanh thông, kích hoạt vượng khí ngôi nhà...
Quan niệm dân gian cho rằng xây nhà vào những năm đẹp hợp tuổi, hợp mệnh gia chủ sẽ giúp mọi việc hanh thông, kích hoạt vượng khí ngôi nhà...
Cổng nhà là nơi đầu tiên bạn nhìn thấy và đi qua khi đi vào một ngôi nhà, đồng thời cổng nhà cũng là một bộ phận có liên quan...
Việc chôn vật phẩm phong thủy dưới nền nhà là một tục lệ đã có từ lâu đời trong văn hóa Việt Nam, với mong muốn cầu bình an, may...
Nhà phố hiện nay vẫn là lựa chọn phổ biến trong các đô thị Việt Nam, nên cần ứng dụng phù hợp các nguyên tắc cơ bản để đạt sự...
Để hóa giải những chiếc cột giữa nhà làm tăng mức độ hài hòa về phong thủy và sự đầm ấm của gia đình cũng cần làm nhiều việc
Nhà phố nhà ống vốn đóng khung theo dạng hình ống, do đó lúc bố trí ban đầu nếu không chú ý bố trí hệ thống cửa (khí khẩu) cho...
Do không gian sân thượng là không gian thịnh dương, đã có quá nhiều ánh sáng tự nhiên nên cần tạo ra những khoảng râm mát từ cây cối.
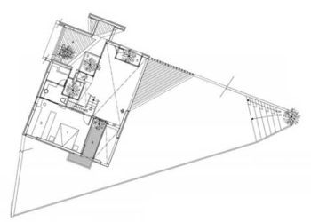
Nếu bất khả kháng, chủ nhà phải xây nhà trên các khu đất hình tam giác, thì tốt nhất nên thiết kế nhà vuông, phần thừa ra có thể làm...
Thần Tài là vị thần trông coi tiền tài, vàng bạc, là dấu ấn của thời kỳ kinh tế thương nghiệp. Dưới đây là cách đặt bàn thờ thần tài...
Điều này không có nghĩa trổ càng nhiều cửa sổ thì ngôi nhà càng thông thoáng. Ngoài ra, trổ cửa đúng hướng phong thủy sẽ đem lại cho gia chủ...