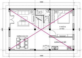
HƯỚNG DẪN TÌM TÂM NHÀ VÀ HƯỚNG NHÀ CHUẨN PHONG THỦY
Theo kiến thức phong thủy, có rất nhiều cách để tìm Tâm nhà và Hướng nhà theo phong thủy khai vận. Tuy nhiên, vẫn có những quy tắc chuẩn mực...
Theo kiến thức phong thủy, có rất nhiều cách để tìm Tâm nhà và Hướng nhà theo phong thủy khai vận. Tuy nhiên, vẫn có những quy tắc chuẩn mực...
Để tăng sự tinh tế và độc đáo, bạn luôn muốn đặt 1 bể cá trong ngôi nhà thân yêu của mình. Nhiều người luôn muốn đặt bể cá ở...
Với những gia chủ có điều kiện, việc thiết kế một bể cá ngoài trời không phải là khó khăn. Tuy nhiên, để có một hồ non bộ đẹp và...
Dưới đây nghiên cứu về một số hình thể sát trong kiến trúc theo "Dương trạch tam yếu", chủ yếu căn cứ từ góc độ tạo hình kiến trúc.
Hiện nay, thiết kế nhà chủ yếu là nhà tầng nên thường có hệ thống cầu thang. Theo phong thủy cầu thang trong nhà, cầu thang không nên đối diện...
Trong phong thủy, cầu thang được coi là hành lang dẫn khí cho ngôi nhà, vì vậy cầu thang cần được thiết kế hợp lý để khí có thể phân...
Chọn hướng ngôi nhà luôn được coi là yếu tố đầu tiên khi xây dựng nhà ở. Ngôi nhà là nơi trú ngụ, là tổ ấm của mỗi người, mỗi...
Trong phong thủy nhà ở, 10 “đại sát” sau bạn cần lưu ý để tránh khi mua hoặc chọn đất xây nhà. Nếu phạm phải sẽ không tốt đến cuộc...
Cầu thang không chỉ là không gian giao thông theo chiều đứng để đưa người hoặc vật lên các tầng của ngôi nhà, trong phong thủy cầu thang được ví...
Việc chọn hướng nhà theo phong thủy là rất cần thiết Nó có ảnh hưởng rất lớn tới tương lai phát triển của gia đình