MÁY TIỆN REN ỐNG PHÂN LOẠI VÀ TIÊU CHÍ CHỌN MUA
Máy tiện ren (tiếng anh là lathe) là một máy công cụ quay phôi theo một trục quay để thực hiện các hoạt động khác nhau như cắt, chà nhám, khía
Máy tiện ren (tiếng anh là lathe) là một máy công cụ quay phôi theo một trục quay để thực hiện các hoạt động khác nhau như cắt, chà nhám, khía
Trải qua hàng nghìn thế kỷ, có rất nhiều kiến trúc, ngôi nhà, biệt thự... được xây dựng với nhiều kiểu mái khác nhau, nhưng phổ biến nhất vẫn là...
Nhà có cấu tạo mái bằng bê tông cốt thép đã trở nên phổ biến những năm gần đây, nhất là ở khu vực thường xảy ra thiên tai, bão...
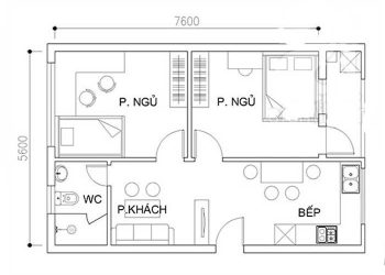
Với việc diện tích xây dựng ngày càng thu nhỏ nên khi thiết kế nhà ở, gia chủ đều mong muốn tận dụng tối đa diện tích. "Có nên xây...
Gia đình tôi có mảnh đất diện tích 46 mét vuông (4,2mx11m), hai mặt tiền. Hiện nay, chúng tôi đang có ý định xây nhà cho hai hộ gia đình...
Gia đình tôi vừa mua được mảnh đất diện tích 17 mét vuông (3,5mx5m) và có ý định xây nhà 2,5 tầng. Mong các KTS tư vấn giúp để tôi...
Gia đình tôi mới mua được căn hộ diện tích 42 mét vuông trong một chung cư cũ và có nhu cầu cải tạo lại cho 4 người ở với...
Tôi sinh năm 1972, năm nay, gia đình tôi có ý định xây nhà trên mảnh đất diện tích 42 mét vuông (2,8mx15m). Tôi dự định xây một căn nhà...
Tôi sinh năm 1985 còn chồng sinh năm 1982. Năm nay gia đình tôi có nhu cầu xây nhà trên mảnh đất 30 mét vuông (4mx7,5m), hai mặt tiền...
gia đình tôi đang có ý định xây nhà 3 tầng trên mảnh đất có kích thước 3x10 m. Tuy nhiên, lộ giới sẽ cắt vào 2m