TƯ VẤN THIẾT KẾ NHÀ DƯỚI 20M2 ĐẸP VÀ KHOA HỌC
Các kiến trúc sư sẽ gợi ý cho bạn thiết kế căn nhà chưa đến 20m2 vẫn đủ tiện nghi và các không gian chức năng được phân chia một...
Các kiến trúc sư sẽ gợi ý cho bạn thiết kế căn nhà chưa đến 20m2 vẫn đủ tiện nghi và các không gian chức năng được phân chia một...
Mảnh đất nhà tôi có diện tích 3m X 12m, hiện vợ chồng tôi đang có ý định xây một căn nhà ống 2,5 tầng trên mảnh đất này...
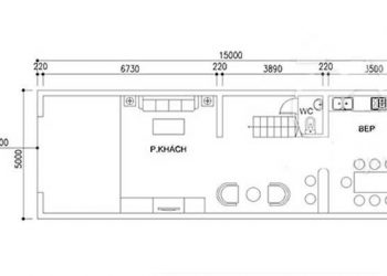
Tôi muốn nhờ các KTS tư vấn giúp cách xây dựng hợp lý cho một căn nhà ống cấp 4 có diện tích 34 mét vuông (7,5m x 4,5m).
Mẫu thiết kế dưới đây gia chủ muốn hướng tới một ngôi biệt thự tràn trập cây cối, có bể bơi, có khu nghỉ ngơi thư giãn ngoài trời ở...
Gia đình tôi muốn nhờ KTS thiết kế một căn biệt thự nhà vườn trên khuôn viên 2.000m2 dành cho gia đình 3 thế hệ gồm phòng khách, bếp ăn,...
" Biệt thự phố " là một từ ghép vốn phát sinh từ thực tế để chỉ những ngôi nhà phố có mặt tiền rộng và hình thức mặt đứng...
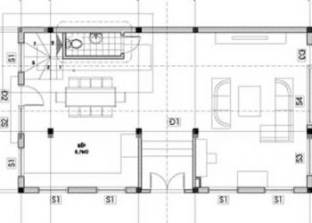
Gia đình tôi có một mảnh đất hai mặt đường, diện tích là 5x10m. Hiện tôi đang có ý định xây nhà và xin được sự tư vấn từ KTS.
Căn nhà ống phổ biến thường thấy ở các đô thị Việt Nam đất chật người đông với bề ngang 5m này đã được tính toán một cách hợp lý
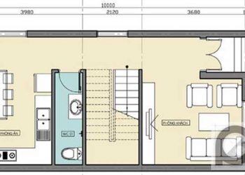
Gia đình tôi mới mua được lô đất mặt phố có diện tích 75 mét vuông (5mx15m), đường 5,5m, vỉa hè 3m và đang có nhu cầu thiết kế nhà...
Tôi có căn lô góc khu nhà liền kề ở Mễ Trì Thượng (Từ Liêm, Hà Nội), nằm tiếp giáp với 2 nhà đã xây sẵn. Diện tích khu đất...