TƯ VẤN CẢI TẠO CĂN HỘ CHUNG CƯ 42 M2 THOÁNG MÁT
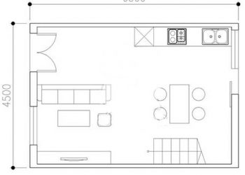
Gia đình tôi có căn hộ chung cư 42 mét vuông (6mx7m) với 1 phòng ngủ, phòng khách, bếp và 1 nhà vệ sinh. Hiện nay tôi có dự định...
Gia đình tôi có căn hộ chung cư 42 mét vuông (6mx7m) với 1 phòng ngủ, phòng khách, bếp và 1 nhà vệ sinh. Hiện nay tôi có dự định...
Năm nay gia đình tôi có nhu cầu xây nhà 5- 6 tầng trên mảnh đất 29 mét vuông (4,5mx6,5m), hai mặt tiền (có thể cơi nới). Nhờ các kiến...
ôi có mảnh đất ô góc hướng Nam chiều rộng 7m (đường 5,5m), hướng Tây rộng 12m (đường 7m). Tôi muốn được tư vấn xây nhà 3 tầng.
Tôi muốn xây nhà 4 tầng có 4 phòng ngủ khép kín, một bếp ăn, phòng khách rộng thoáng, trên sân thượng có chỗ thoáng mát.
Tôi cần kiến trúc sư tư vấn xây nhà trên diện tích 7.5mx10.5m với số tiền là 1 tỷ đồng. Nhà theo phong cách hiện đại, vật liệu trung bình,...
Tôi sinh năm 1976. Hiện nay tôi đang có nhu cầu xây nhà trên mảnh đất diện tích 54 mét vuông, hai mặt ngõ sao cho thoáng đãng và hợp...
Mọi người thường nghe nói và hiểu nhiều về thuế thu nhập cá nhân nhưng đối với nhiều loại thuế khác thì còn khá mơ hồ chưa nắm vững trong...
Thiết kế xây dựng một ngôi nhà đẹp là việc không hề đơn giản. Có nhiều ngôi nhà rất to mà không đẹp, lại có rất nhiều ngôi nhà đẹp...
Hiện nay có rất nhiều vật liệu để thiết kế cầu thang với nhiều hình dáng độc đáo khác nhau, nhưng có lẽ để tạo nên sự sang trọng chỉ...
Gạch bê tông khí chưng áp (hay còn gọi là gạch AAC) là 1 loại vật liệu xây dựng chất lượng cao được sản xuất từ cát, đá mạt nghiền...